Villa singola in vendita

Leinì, Via Don Gioda
€ 215.000
4 locali 4 locali
111 Mq 111 Mq
1 bagno 1 bagno

Villa singola in vendita

Leinì, Via Don Gioda

Descrizione annuncio

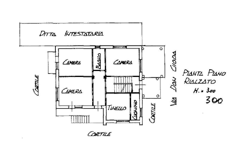
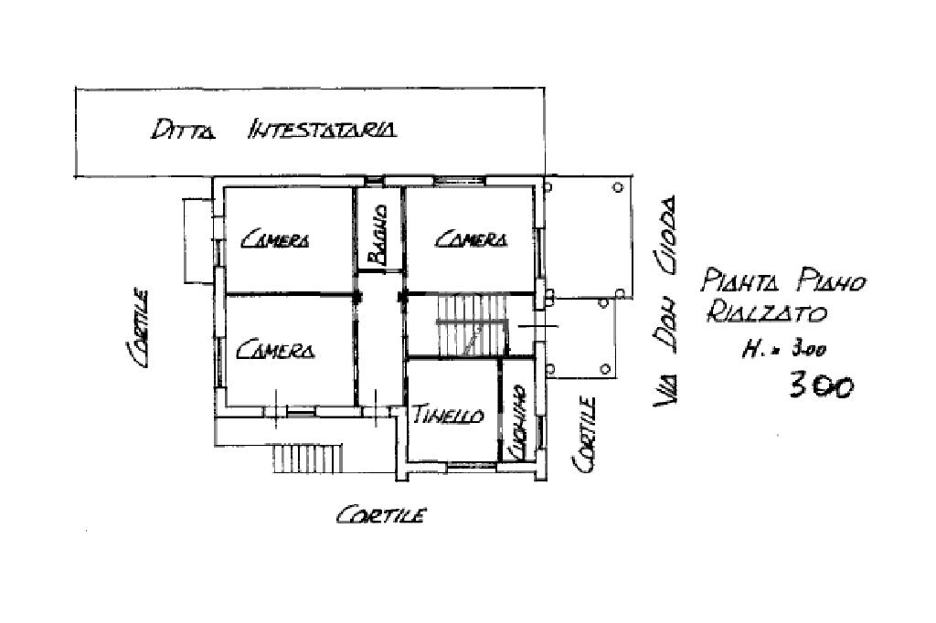
Villa singola libera su quattro lati, con giardino privato - Anni '60. In tranquilla zona residenziale, a pochi minuti dal centro del paese e dai principali servizi, proponiamo in vendita villa singola degli anni '60, libera su quattro lati e circondata da giardino e cortile privati.

L'abitazione principale si sviluppa al piano rialzato, dove l'ingresso introduce in modo funzionale ai vari ambienti della casa. La zona giorno è composta da un ampio tinello con cucinino, entrambi illuminati da finestre che garantiscono ottima luminosità. Il soggiorno, spazioso e accogliente, gode di una grande finestra e di una portafinestra che conduce al primo balcone, offrendo luce naturale per tutta la giornata.

La zona notte comprende due camere da letto di generose dimensioni: una con finestra, l'altra con finestra e portafinestra con accesso al secondo balcone della casa. Il bagno, anch'esso finestrato, è dotato di vasca, sanitari e attacchi per lavatrice.

Al piano superiore è presente una mansarda da rifinire, già predisposta con gli impianti di luce, gas e acqua. Dallo stesso piano si accede a un ampio terrazzo, ideale per momenti di relax durante la bella stagione.

Completano la proprietà una tavernetta molto luminosa, grazie alla presenza di tre finestre, dotata di forno/camino, perfetta per pranzi o cene conviviali. Una parte di questo ambiente può essere utilizzata come autorimessa interna.

Al piano seminterrato, un box auto con bagno (accessibile anche dal cortile esterno), un cucinotto e il vano caldaia.

La casa è dotata di infissi in legno, impianto d'allarme volumetrico e perimetrale, riscaldamento a metano con radiatori, e si trova in una zona tranquilla del paese, ideale per chi cerca comfort e privacy, restando vicino a tutti i servizi.

Mostra tutto

Nelle vicinanze

Trasporto pubblico Trasporto pubblico
Leini' (bar Florian)
Leini' (bar Florian)
990 m
Verdi
Verdi
1,1 Km
Ricariche auto elettriche Ricariche auto elettriche
Municipio di Leini | EnelX
1,1 Km
Scuole Scuole
Istituto Comprensivo Carlo Casalegno
820 m
Scuola Primaria "Anna Frank"
890 m
Scuola dell'Infanzia "Carlo Collodi"
1,4 Km
Farmacia Farmacia
Farmacia
920 m
Supermercati Supermercati
MD
880 m
Crai
940 m
Eurospin
1,1 Km
Pam
1,3 Km
Ristoranti Ristoranti
Pizzeria Fantasy
620 m
Bistrot Medina
920 m
Haru restaurant
1,9 Km
Mostra tutto

Caratteristiche

Rif.:
61114296
Piano:
1 di 1 (Piano rialzato)
Box:
2
Posti auto:
1
Balconi:
2
Terrazzi:
1
Mostra tutto
Prezzo Prezzo
€ 215.000
Rata mutuo Rata mutuo
€ 954 / mese
Spese annue Spese annue
€ 0
Proponi il tuo prezzoProponi il tuo prezzo

Classe Energetica

Questo immobile è esente da classe energetica
Anno di costruzione:
1965
Riscaldamento:
Autonomo
Tipo impianto:
A radiatori
Tipo alimentazione:
Metano

Ti interessa visionare l'immobile?

Fissa un appuntamento  Fissa un appuntamento

Richiedi informazioni

* Questi campi sono obbligatori

Calcola il tuo mutuo

Semplice e senza impegno
Anticipo

( % )
Mutuo

( % )

pochi semplici passi

inserisci i tuoi dati
Questionario completato
Grazie per aver richiesto un appuntamento senza impegno con un nostro Consulente del Credito e Assicurativo.

Hai inserito correttamente tutti i dati necessari e a breve riceverai una e-mail con un link da convalidare per inviare i tuoi dati.
Affiliato
Futurae Group Srl
P.le Lepanto, 3 10040 Leinì (TO)

Il nostro staff


  • Marco Giuseppe Chiabrando
    Affiliato

  • Mara Caiella
    Affiliata

  • Rosa Guglielmi
    Coordinatrice

  • Bruno La Caria
    Responsabile

  • Giulia Troglia Gamba
    Collaboratrice

  • Andrea Virardi
    Collaboratore
P.le Lepanto, 3 10040 Leinì (TO)
Zona: Leini'
Mostra su mappa
Orari: 9.00 -13.00 / 15.00-19.30 sabato 18.00
Affiliato
Futurae Group Srl
P.le Lepanto, 3 10040 Leinì (TO)

2025 Tecnocasa Franchising S.p.A. - P. IVA 08365160152 - Via Monte Bianco 60/A 20089 Rozzano (MI). Ogni agenzia ha un proprio titolare ed è autonoma. Privacy policy | Policy utilizzo | Cookie policy