Bifamiliare in vendita

Leinì, Via pratonuovo
€ 340.000
8 locali 8 locali
300 Mq 300 Mq
2 bagni 2 bagni

Bifamiliare in vendita

Leinì, Via pratonuovo

Descrizione annuncio

In una tranquilla zona residenziale immersa nel verde, a pochi minuti dal centro del paese, proponiamo una bifamiliare degli anni '70, libera su quattro lati e circondata da un ampio giardino e cortile privati. La proprietà si compone di due appartamenti indipendenti, caratterizzati da spazi ampi e ben distribuiti.

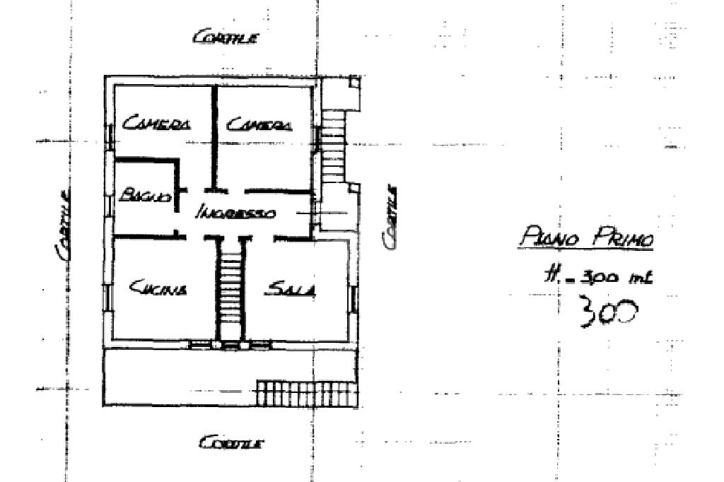
Al primo piano si trova il primo appartamento, il cui ingresso conduce a una suddivisione funzionale degli ambienti. Gli spazi interni sono generosi e ben illuminati. La cucina abitabile è dotata sia di finestra che di portafinestra con accesso diretto al terrazzo, condiviso anche dal soggiorno, anch'esso particolarmente luminoso grazie alla presenza di un'ulteriore finestra e portafinestra. La zona notte ospita due camere da letto matrimoniali, entrambe con finestra che garantisce luce naturale per tutto l'arco della giornata. Il bagno, anch'esso finestrato, è completo di sanitari, doccia e attacchi per la lavatrice. I serramenti sono in alluminio con tapparelle.

Sempre al primo piano, con accesso indipendente dal terrazzo tramite una scala esterna, si raggiunge il secondo appartamento, situato al piano mansardato. Questa unità, recentemente ristrutturata, si distingue per il soffitto mansardato sfruttabile e per le finiture moderne. L'ingresso si apre su un ampio soggiorno doppio con angolo cottura, arredato con una cucina a isola. Grazie a due portefinestre e a una finestra, l'ambiente risulta particolarmente arioso e luminoso. Le portefinestre conducono a due balconi, uno con vista sul giardino privato e l'altro affacciato su Via Pratonuovo. Anche in questo appartamento sono presenti due camere da letto mansardate: la prima dotata di finestra, la seconda con accesso a un terzo balcone. Il bagno, finestrato, è completo di doccia e predisposizione per la lavatrice. I serramenti sono in alluminio con doppi vetri, apertura a vasistas e gelosie anch'esse in alluminio. L'unità è dotata di impianto di climatizzazione e viene venduta completamente arredata.

Al piano terra è presente una tavernetta con ripostiglio e una cameretta, collegata internamente all'appartamento del primo piano, offrendo così ulteriori spazi da personalizzare secondo le proprie esigenze.

Completano la proprietà uno o più box auto, accessibili tramite passo carraio privato. Il riscaldamento è autonomo a cherosene, ma è già predisposto l'impianto per l'installazione di una caldaia a gas.

Questa abitazione rappresenta una soluzione ideale per chi desidera vivere in un contesto tranquillo e riservato, senza rinunciare alla comodità dei servizi del centro paese, facilmente raggiungibile in pochi minuti.

Mostra tutto

Nelle vicinanze

Trasporto pubblico Trasporto pubblico
Leini' (bar Florian)
Leini' (bar Florian)
1,4 Km
Leini' (Roveglia)
Leini' (Roveglia)
1,5 Km
Ricariche auto elettriche Ricariche auto elettriche
Municipio di Leini | EnelX
1,6 Km
Scuole Scuole
Istituto Comprensivo Carlo Casalegno
1,3 Km
Scuola Primaria "Anna Frank"
1,3 Km
Scuola dell'Infanzia "Carlo Collodi"
1,9 Km
Farmacia Farmacia
Farmacia
1,4 Km
Supermercati Supermercati
MD
1,4 Km
Crai
1,5 Km
Eurospin
1,7 Km
Pam
1,8 Km
Ristoranti Ristoranti
Pizzeria Fantasy
1,1 Km
Bistrot Medina
1,4 Km
Haru restaurant
2,4 Km
Mostra tutto

Caratteristiche

Rif.:
61130207
Piano:
Su più livelli di 2
Totale piani:
2
Box:
2
Posti auto:
2
Balconi:
4
Mostra tutto
Prezzo Prezzo
€ 340.000
Rata mutuo Rata mutuo
€ 1.584 / mese
Spese annue Spese annue
€ 0
Proponi il tuo prezzoProponi il tuo prezzo

Classe Energetica

F
F
F
F
F
F
F
F
F
EP globale non rinnovabile:
212.71 kW h/m² anno
EP globale rinnovabile:
73.03 kW h/m² anno
EP invernale del fabbricato:
EP estiva del fabbricato:
Anno di costruzione:
1970
Riscaldamento:
Autonomo
Tipo impianto:
A radiatori
Tipo alimentazione:
Altro

Ti interessa visionare l'immobile?

Fissa un appuntamento  Fissa un appuntamento

Richiedi informazioni

Clicca su Leggi per aprire l'informativa
* Questi campi sono obbligatori

Calcola il tuo mutuo

Semplice e senza impegno
Anticipo

( % )
Mutuo

( % )

pochi semplici passi

inserisci i tuoi dati
Questionario completato
Grazie per aver richiesto un appuntamento senza impegno con un nostro Consulente del Credito e Assicurativo.

Hai inserito correttamente tutti i dati necessari e a breve riceverai una e-mail con un link da convalidare per inviare i tuoi dati.
Affiliato
Futurae Group Srl
P.le Lepanto, 3 10040 Leinì (TO)

Il nostro staff


  • Marco Giuseppe Chiabrando
    Affiliato

  • Mara Caiella
    Affiliata

  • Rosa Guglielmi
    Coordinatrice

  • Bruno La Caria
    Responsabile

  • Alessio Imbrisca
    Collaboratore

  • Giulia Troglia Gamba
    Collaboratrice

  • Andrea Virardi
    Collaboratore
P.le Lepanto, 3 10040 Leinì (TO)
Zona: Leini'
Mostra su mappa
Orari: 9.00 -13.00 / 15.00-19.30 sabato 18.00
Affiliato
Futurae Group Srl
P.le Lepanto, 3 10040 Leinì (TO)

2025 Tecnocasa Franchising S.p.A. - P. IVA 08365160152 - Via Monte Bianco 60/A 20089 Rozzano (MI). Ogni agenzia ha un proprio titolare ed è autonoma. Privacy policy | Policy utilizzo | Cookie policy